12 bilder
            
        
    
    
    Basel Karte
...mieten wir diese 3-Zimmerwohnung mit folgendem Ausbaustandard:- Korridor mit Einbauschrank- moderne Küche mit Glaskeramikkochfeld- Parkettboden in allen Zimmern- Badezimmer mit Dusche- separates Gäste-WCDie Liegenschaft verfügt über einen Lift. Im Hi...
  
    
        
	
        
    
        
    
    
    
        
            11 bilder
            
        
    
    
    Bern Karte
...mieten als Kaution auf ein Sperrkonto einzahlen. So bleiben Sie liquid, da nicht eine grössere Geldsumme für die Dauer Ihres Mietverhältnisses blockiert ist. Und das Beste: Das Angebot Mieten ohne Kaution ist für Sie gratis. Erfahren Sie mehr auf auf...
  
    
        
	
        
    
    
        
    
    
    
        
            Foto anschauen
            
        
    
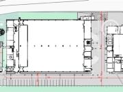
    Avenches
...- Commerces: 50 m- Payerne: 10 km- Fribourg: 13 km- Yverdon: 35 kmDisponibilité: à convenirPotentiel constructible: 2000 m2 au sol avec hauteur de 10-12 mLoyers:- Halle: CHF 130.-/m2/an HT. HC.- Bureaux, locaux: entre CHF 130.- et 150.-/m2/an HT. HC....
  
    
        
	
        
    
    
        
    
    
    
        
            Foto anschauen
            
        
    
    Lausanne
...ervie en 5 minutes- Yverdon 30 minutesDisponibilité- Octobre 2024Visite- Merci de contacter le locataire auou écrire à Ce bien vous intéresse ou vous avez des questions ?Nos spécialistes se tiennent à votre disposition et vous répondent sous 24heures...
  
    
        
	
        
    
    
        
    
    
    
        
            Foto anschauen
            
        
    
    Lausanne
...desservie en 3 minutes- Lausanne Flon desservie en 5 minutes- Yverdon 30 minutesDisponibilité- Immédiate ou à convenirCe bien vous intéresse ou vous avez des questions ?Nos spécialistes se tiennent à votre disposition et vous répondent sous 24heures...
  
    
        
	
        
    
    
        
    
    
    
        
            Foto anschauen
            
        
    
    Yverdon-les-Bains Karte
Appeler. Visiter. Louer.Vous cherchez une place de parking pratique pour votre moto? Nous nous ferons un plaisir de vous aider.Plusieurs places extérieures sont disponibles.Notre offre immobilière est vaste: nhésitez pas à consulter les autres...
  
    
        
	
        
    
    
        
    
    
    
        
            Foto anschauen
            
        
    
    Yverdon-les-Bains
Immeuble soigné entouré de verdure, situé à proximité du commerce, des transports publics et écoles - quà 10 min. à pieds du lac. Cet appartement vous offre:- salle de séjour lumineuse avec accès au jardin privé- cuisine très spacieuse- salle de...
  
    
        
	
        
    
    
        
    
    
    
        
            Foto anschauen
            
        
    
    Yverdon-les-Bains
...Yverdon-les-BainsLocal commercial de 119m2 au centre-villeIdéalement situé en plein coeur de la ville, ce local commercial offre un cadre de vie à la fois confortable et pratique. À deux pas des transports publics et de toutes les commodités, il répo...
  
    
        
	
        
    
    
        
    
    
    
        
            Foto anschauen
            
        
    
    Yverdon-les-Bains
...ocal commercial au centre ville dYverdonLocal commercial denviron 100 m2 au rez-de-chaussée comprenant: - Un grand espace avec vitrine - WC séparé- Petite dépendance Pour activité type bureau ou paramédical uniquementDisponible de suite ou à convenir...
  
    
        
	
        
    
    
        
    
    
    
        
            Foto anschauen
            
        
    
    Yverdon-les-Bains
...Grand dépôt à Yverdon-les-BainsGrand dépôt avec petit lavabo, idéal pour entreprises.Dépôt sécurisé au sous-sol dun garage.Disponibilité de suite ou à convenir...
  
    
        
	
        
    
    
        
    
    
    
        
            Foto anschauen
            
        
    
    YVERDON Karte
...Lage in Yverdon les Bains, in der Nähe aller notwendigen Annehmlichkeiten.Diese Immobilie ist wie folgt angeordnet:- Ein Eingang- Ein helles Wohnzimmer- Eine Einbauküche- Zwei Schlafzimmer- Ein Badezimmer/WCInformationen: Frau Franchi 021 331 17 02 -...
  
    
        
	
        
    
    
        
    
    
    
        
            Foto anschauen
            
        
    
    Le Mont-sur-Lausanne
...Yverdon) se trouve à quelques minutes, facilitant les liaisons avec le reste de la Suisse romande, ainsi que lautoroute A1 reliant Berne et Zurich.Description: Local commercial type streetbox.Immeuble neuf à construire. Ce bâtiment moderne propose de...
  
    
        
	
        
    
    
        
    
    
        
            7 bilder
            
        
    
    
    Yverdon-les-Bains Karte
...Yverdon und ist sehr einfach und bequem zu erreichen, in unmittelbarer Nähe der öffentlichen Verkehrsmittel und der Autobahn. Die Räumlichkeiten sind für die Lagernutzung vorgesehen und verfügen über eine technische Ausstattung wie einen Aufzug, Glas...
  
    
        
	
        
    
    
        
    
    
        
            4 bilder
            
        
    
    
    Neuchâtel Karte
...ge: 1. Etage-Service-Aufzug-Treppe- Wasserstelle im BüroOrt:- 5 Minuten von der Autobahn A1 entfernt- 9 Minuten vom Bahnhof Neuchâtel SBB- 30 Minuten von Biel und Yverdon entferntMietbedingungen:- Miete: CHF 1550.-/Monat- Depotgebühr: CHF 240.-/Monat...
  
    
        
	
        
    
    
        
    
    
    
        
            Foto anschauen
            
        
    
    Le Mont-sur-Lausanne
...Yverdon) se trouve à quelques minutes, facilitant les liaisons avec le reste de la Suisse romande, ainsi que lautoroute A1 reliant Berne et Zurich.Description:Immeuble neuf à construire. Ce bâtiment moderne proposera des espaces polyvalents adaptés à...
  
    
        
	
        
    
    
        
    
    
    
        
            Foto anschauen
            
        
    
    Chavornay
...Yverdon. Dans un immeuble commercial pour tout type dactivité professionnelle type industrie, commerce, bien-être, artisanat, bureau etc. Au 1er étage sans ascenseur. Composé dune grande pièce ouverte avec grandes fenêtres et une belle salle deau trè...
  
    
        
	
        
    
    
        
    
    
        
            7 bilder
            
        
    
    
    Mathod Karte
...den Städten Orbe und Yverdon-les-Bains sowie zur Autobahn.3.5 ZimmerwohnungVoll ausgestattete offene KücheHelles WohnzimmerRäumeBadezimmer mit BadewanneParkplätze gegen Aufpreis verfügbarFür einen Besuch kontaktieren Sie uns bitte unter 021/963.35.32...
  
    
        
	
        
    
    
        
    
    
        
            2 bilder
            
        
    
    
    Yverdon-les-Bains Karte
Appeler. Visiter. Louer.Vous cherchez une place de parking pratique pour votre véhicule? Nous nous ferons un plaisir de vous aider.Notre offre immobilière est vaste: nhésitez pas à consulter les autres annonces. Vous trouverez des objets...
  
    
        
	
        
    
    
        
    
    
    
        
            Foto anschauen
            
        
    
    Montagny-près-Yverdon
...YverdonCommerce, showroom de 400 m2 à louer à Montagny-près-YverdonExcellente visibilité sur une route passante et au coeur de la zone commercialeVitrine linéaire de 20 mEnseignes à proximité: Jumbo, Coop, OTTOS, Qualipet, Mc Donalds, Livique, ….Accè...
  
    
        
	
        
    
    
        
    
    
        
            3 bilder
            
        
    
    
    Yverdon-les-Bains Karte
Diese prächtige 3,5-Zimmer-Wohnung befindet sich im 14. Stock eines Gebäudes in der Rue Haldimand 103 und bietet einen aussergewöhnlichen Panoramablick auf den See sowie ein helles und geräumiges Wohnumfeld.Es besteht aus:Eine EingangshalleEin...
  
    
        
	
        
    
    
        
    
    
        
            4 bilder
            
        
    
    
    
.... Escalier Situation géographique: 5 minutes de lautoroute A1. 9 minutes de la gare CFF de Neuchâtel. 30 minutes de Bienne et dYverdon Conditions de location: Loyer: 1575.00 CHF / mois. Acompte de charge: 470.00 CHF / mois Disponibilité: juillet 2024...
  
    
        
	
        
    
    
        
    
    
    
        
            Foto anschauen
            
        
    
    Lausanne Karte
...Yverdon: Café Restaurant Fußgängerzone zu verkaufen.Tolle Gelegenheit mit diesem Café-Restaurant im Zentrum von Yverdon.Es bietet 70 Sitzplätze im Innenbereich und eine schöne Terrasse mit 40 Sitzplätzen.Gut ausgestattete Küche, Fettabscheider und Be...
  
    
        
	
        
    
    
        
    
    
        
            8 bilder
            
        
    
    
    Yverdon-les-Bains Karte
...Yverdon und bietet einen sehr einfachen und bequemen Zugang, der sich für gemischte Aktivitäten eignet.EntwicklungEinsatz: Büro / WerkstattFläche: 332 m²Etage: 1. OGAnnehmlichkeitService-AufzugCafeteriaLichtwellenleiter16A dreiphasige SchalttafelGeme...
  
    
        
	
        
    
    
        
    
    
        
            6 bilder
            
        
    
    
    Yverdon-les-Bains Karte
Y-PARC ist ausschließlich der Ausbildung und Forschung, der Entwicklung und der industriellen Produktion vorbehalten und zeichnet sich durch seine Kompetenzzentren aus, insbesondere in den Bereichen Medizintechnik und Robotik.Mit mehr als 200...
  
    
        
	
        
    
    
        
    
    
        
            2 bilder
            
        
    
    
    Yverdon-les-Bains Karte
Appeler. Visiter. Louer.Vous cherchez une place de parking pratique pour votre moto? Nous nous ferons un plaisir de vous aider.Plusieurs places extérieures sont disponibles.Notre offre immobilière est vaste: nhésitez pas à consulter les autres...
  
    
        
	
        
    
    
        
    
    
        
            2 bilder
            
        
    
    
    Yverdon-les-Bains Karte
Appeler. Visiter. Louer.Vous cherchez une place de parking pratique pour votre moto? Nous nous ferons un plaisir de vous aider.Plusieurs places extérieures sont disponibles.Notre offre immobilière est vaste: nhésitez pas à consulter les autres...
  
    
        
	
        
    
        
    
    
    
        
            10 bilder
            
        
    
    
    Ersigen Karte
CHF 2250.- per month CHF 2250.- / mth 4½ room apartment in Ersigen (BE), furnished, temporary General information Charming, furnished apartment in 190-year-old house with sandstone walls and open kitchen. Large garden with trampoline & sandpit -...
  
    
        
	
        
    
        
    
    
    
        
            3 bilder
            
        
    
    
    Porrentruy Karte
Le bâtiment bénéficie dun emplacement privilégié dans la vieille ville, proche des commerces mais à lécart de lagitation des rues principales. Le logement comprend une cuisine ouverte sur le salon, une chambre et une salle de douche/WC avec...